Moderne Büroflächen für
innovative Technologie-KMUs.
Hochwertige
Büroflächen
Im Trunz Technologie Center (TTC) in Steinach finden kleine und mittelständische Unternehmen aus dem Technologiebereich die perfekte Umgebung für Wachstum und Innovation. Wer auf Flexibilität, Effizienz und ein inspirierendes Arbeitsumfeld setzt – sei es in Softwareentwicklung, Technologie-Dienstleistungen, Engineering oder digitalen Innovationen – findet hier den Raum, den sein Unternehmen für nachhaltigen Erfolg braucht.
Hervorragende Infrastruktur
Die zu vermietenden Büroflächen überzeugen durch eine moderne Infrastruktur sowie ideale Grundrisse. Helle, einladende Räume und eine professionelle Atmosphäre fördern Produktivität, Kreativität und den interdisziplinären Austausch.
Ergänzend dazu steht Ihnen der grosszügige Showroom im Erdgeschoss für Projekte, Präsentationen oder Veranstaltungen zur Verfügung. Alternativ bieten wir nebst dem 2. OG auch weitere Gewerbeflächen zur Miete an.
Unser Mitarbeiterrestaurant kann von Ihnen und Ihrem Team mit genutzt werden und rundet das attraktive Gesamtangebot ab.
Verkehrsgünstige Lage
Die Nähe zu urbaner Infrastruktur macht den Standort besonders attraktiv. Steinach SG liegt in unmittelbarer Nähe zur Stadt St. Gallen und befindet sich zwischen dem Thurgau und dem Rheintal. Dank dieser zentralen Lage sind sämtliche Regionen der Ostschweiz schnell erreichbar – ebenso die angrenzenden Länder wie das Fürstentum Lichtenstein, Österreich und Deutschland.
Vorteile auf einen Blick
- Optimale Bürogrössen für wachsende KMUs
- Moderne technische Ausstattung
- Repräsentative Arbeitsumgebung mit professionellem Erscheinungsbild
- Attraktiver Standort mit guter Erreichbarkeit
- Langfristige Planungssicherheit
- Zugang und Benützung von Mitarbeiterrestaurant «Triangolo» im EG
- Zugang und Benützung von Showroom im EG
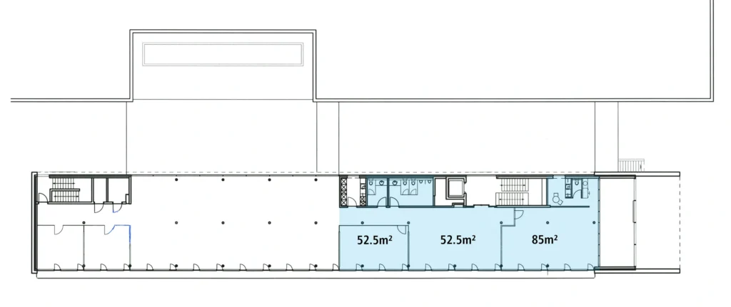
Von 52m2 bis
190m2
Eigene
Küche & Bad
Zugang zu Mitarbeiter-restaurant
Zugang zu
Showroom